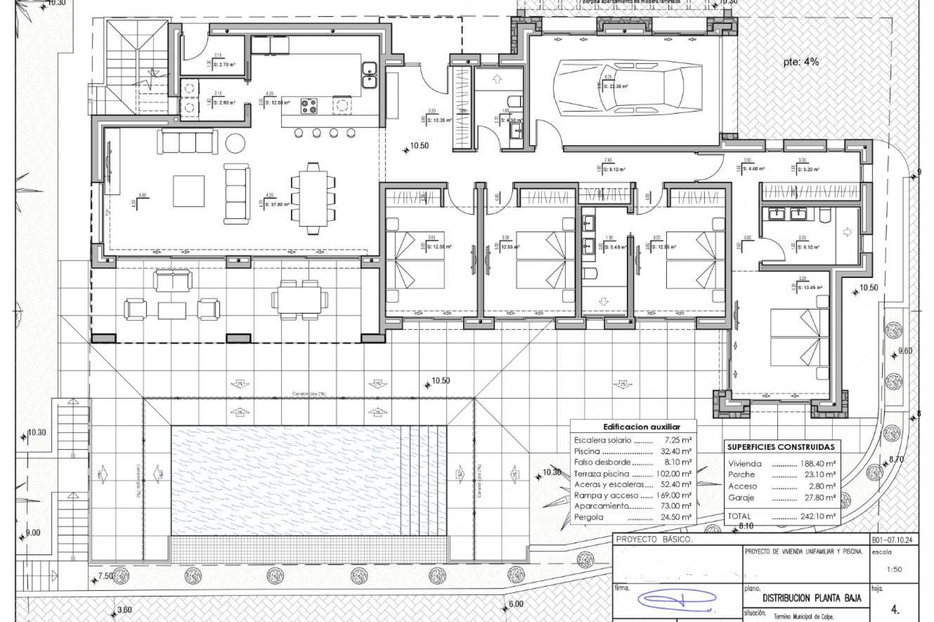
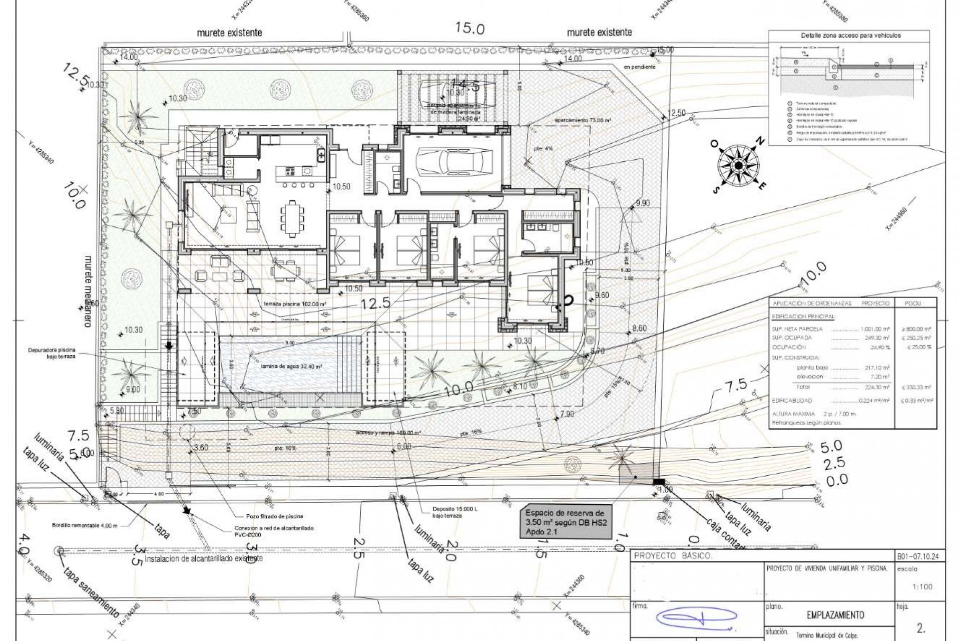
Ta nowoczesna willa w Calpe oferuje wyjątkowy styl życia z zapierającymi dech w piersiach widokami na morze, położona w jednej z najbardziej prestiżowych urbanizacji w okolicy. Usytuowana na działce z ekspozycją południowo-zachodnią, zapewnia spektakularne panoramiczne widoki na Peñón de Ifach oraz piękne wybrzeże Calpe. Willa została zaprojektowana na jednym poziomie dla maksymalnego komfortu i podzielona jest na dwie wyraźnie określone strefy. Strefa dzienna obejmuje elegancki hol wejściowy, jasny i przestronny salon z jadalnią oraz nowoczesną, w pełni wyposażoną kuchnię z osobną pralnią. Z tego miejsca duże przeszklenia prowadzą na obszerny zadaszony taras, który płynnie łączy się ze strefą basenową, tworząc idealne miejsce do życia na świeżym powietrzu. W tej części znajduje się także garaż oraz pomieszczenie techniczne. Strefa nocna zapewnia pełną prywatność i składa się z czterech stylowych sypialni oraz trzech świetnie wyposażonych łazienek. Dwie sypialnie mają własne łazienki, a wszystkie oferują dużo naturalnego światła i piękne widoki na Peñón de Ifach. Zewnętrzne schody prowadzą na solarium na najwyższym piętrze, gdzie można zrelaksować się i podziwiać panoramiczne, 360-stopniowe widoki na morze, charakterystyczną skałę oraz panoramę Calpe. Na zewnątrz willa zachwyca basenem infinity 10×4, rozległymi tarasami słonecznymi, ogrodem z automatycznym nawadnianiem oraz miejscem parkingowym dla dwóch pojazdów — jednym w zamkniętym garażu, a drugim pod elegancką aluminiową pergolą. Nieruchomość łączy nowoczesny design, wysokiej jakości wykończenia i niezrównane widoki, oferując prawdziwie uprzywilejowany śródziemnomorski styl życia. Ceny zależne od dostępności. Prosimy o kontakt w celu uzyskania dalszych informacji.